Free account required
47
Free account required
$2,200 Rent
Listed 6 hours ago
549 Ridout Street N, #604
Ā· 2
Ā· 2
Ā· 1
Ā· 1200-1399
Listing History
Buy/Sell/Terminated/Expired listing history for 549 Ridout Street N, #604
Key Facts
Key facts for 549 Ridout Street N, #604
Property Type
Condo, 1 Storey/Apt
Parking
None 1 garage, 1 parking
MLS #
X12490896
Size
1200-1399 sqft
Basement
None
Listed on
2025-10-29
Lot size
-
Tax
-
Days on Market
2
Approximate Age
31-50
Maintenance Fee
-
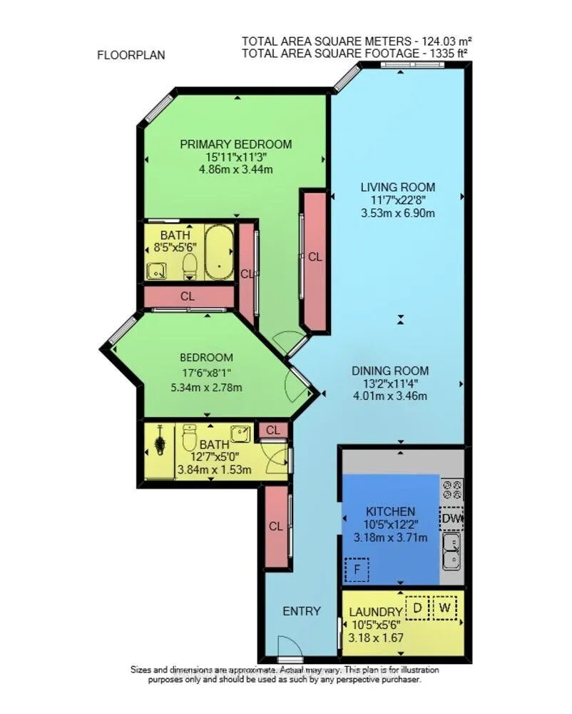
Description
Stunning view in one of the most sought after buildings in Downtown London. Elegant, gorgeous lobby with fireplace, newer flooring, lighting, wall paper, art work, on all floors, roof, underground parking, elevators, landscaping). This well run condo complex is 80% owner occupied (Seniors, retired a...nd young professionals) Secluded yet steps to the best restaurants, Canada Life Place, Covent garden market, Victoria park, scenic walking trails of Harris and Gibbons Park, fishing spots and canoeing. This spacious 1250 sq ft condo is directly overlooking Harris Park and the Thames river. It offers a large great room, good sized kitchen with stainless steel appliances. Ensuite has jacuzzi. Building has large back decking and patios overlooking Harris Park, Exercise room, and common room.
Similar Properties (No results)
Room Types
Bedroom
-
Dimensions 17.52 x 9.12 feet
159.78 sqft
Dining Room
-
Dimensions 13.16 x 11.35 feet
149.37 sqft
Kitchen
-
Dimensions 10.43 x 12.17 feet
126.93 sqft
Courtesy of: LONDON LIVING REAL ESTATE LTD.